Landelijk en toch centraal gelegen (Zilverberg), biedt dit perceel bouwgrond met af te breken woning een uitzonderlijke kans. Bovendien is er de mogelijkheid om het achterliggende perceel landbouwgrond van 6.412 m² bij te kopen voor...
Ruime bel-étage met garage in centrum Rumbeke! Indeling: Gelijkvloers: Inkomhal, praktische berging en ruime garage met ingemaakte kasten. 1ste verdieping: Gastentoilet, zonnig terras, lichtrijke open keuken met eetruimte en aansluitend een gezellige woonkamer met open...
Villa te koop - Roeselare RBU12433
€ 420000
13, Het Seminariegoed, Roeselare, West-Vlaanderen
IInstapklare villa nabij het Sterrebos - rust, ruimte en comfort in een groene omgeving Indeling: De woning verwelkomt je via een ruime inkomhal met gastentoilet. Aansluitend kom je in de lichtrijke leefruimte met pelletkachel, die...
Villa te koop - Rumbeke RBU02928
€ 649000
117, Koestraat, Roeselare, West-Vlaanderen
Karaktervolle VILLA met authentieke charme op hoek-perceel v. 1.225 m²: inkom, toilet, leefruimte, leefkeuken, koele berging, garage (wasplaats + douche), berging, bureau. Buiten: voortuin, dubbele oprit, carport, tuin, groot terras (+ luifel), tuinberging, overdekt terras,...
Deze leuke hoeve is volledig te renoveren, de hoeve bestaat uit een woongedeelte en een aparte schuur met nog enkele kleinere bijgebouwen. De landelijke ligging en vlotte verbinding naar de E403 zijn een troef, op een...
Kantoor te koop - Roeselare RBT22983
€ 199000
Roeselare, West-Vlaanderen
Dit handelspand, cashpunt, is gelegen in het centrum van Rumbeke. Een zorgeloze investering met mooi rendement! Extra troeven: . Centraal gelegen ...
Nieuwbouwwoning op toplocatie in Rumbeke
Roeselare, West-Vlaanderen
3 kamers
Volledige aanbod
Bungalow te koop - Rumbeke RWC40608
€ 246500
10, Renaat De Rudderstraat, Roeselare, West-Vlaanderen
Bent u op zoek naar een rustig gelegen woning met ruimte voor uw gezin en potentieel om deze naar uw wensen te renoveren? Deze charmante bungalow in een doodlopende straat van een residentiële wijk nabij...
Industrie te koop - Roeselare RBU23368
€ 649400
Roeselare, West-Vlaanderen
Een braakliggend perceel bedrijventerrein met een oppervlakte van 1.694 m² zonder bouwverplichting.Het perceel leent zich voor diverse bedrijfsactiviteiten, van opslag tot productie of distributie en bevindt zich op een absolute topligging in Roeselare, met een vlotte...
Industrie te koop - Roeselare RBT15581
€ 235000
Roeselare, West-Vlaanderen
Nieuwbouw KMO-unit met een oppervlakte van +/- 135 m² en 2 privatieve parkeerplaatsen te koop. Fantastisch gelegen langs de Kwadestraat in de schaduw van het Westwing Park.Het casco magazijn is opgebouwd uit een staalconstructie met een...
Industrie te koop - Roeselare RBT36508
€ 1275000
Roeselare, West-Vlaanderen
Nieuwbouw KMO-unit met een oppervlakte van +/- 909 m² en 6 privatieve parkeerplaatsen te koop. Fantastisch gelegen langs de Kwadestraat in de schaduw van het Westwing Park.Het casco magazijn is opgebouwd uit een staalconstructie met een buitenschil...
Huis te koop
31, Kalverstraat, Roeselare, West-Vlaanderen
3 kamers
136 m2
Volledige aanbod
Industrie te koop - Roeselare RBT36509
€ 430000
Roeselare, West-Vlaanderen
Nieuwbouw KMO-unit met een oppervlakte van +/- 307 m² en 2 privatieve parkeerplaatsen te koop. Fantastisch gelegen langs de Kwadestraat in de schaduw van het Westwing Park.Het casco magazijn is opgebouwd uit een staalconstructie met een buitenschil...
Huis te koop
35, Kalverstraat, Roeselare, West-Vlaanderen
3 kamers
136 m2
Volledige aanbod
Nieuwbouwwoning op topligging in Rumbeke
Roeselare, West-Vlaanderen
3 kamers
Volledige aanbod
Huis te koop
29, Kalverstraat, Roeselare, West-Vlaanderen
3 kamers
136 m2
Volledige aanbod
Industrie te koop - Roeselare RBT36510
€ 250000
Roeselare, West-Vlaanderen
Nieuwbouw KMO-unit met een oppervlakte van +/- 164 m² en 1 privatieve parkeerplaats te koop. Fantastisch gelegen langs de Kwadestraat in de schaduw van het Westwing Park.Het casco magazijn is opgebouwd uit een staalconstructie met een buitenschil...
Interessante nieuwbouwwoning in Rumbeke!
1, James Ensorstraat, Roeselare, West-Vlaanderen
3 kamers
Volledige aanbod
Industrie te koop - Roeselare RBL86044
€ 1375150
126, Koestraat, Roeselare, West-Vlaanderen
Perceel industriegrond met een oppervlakte van 3.929 m² te koop in Roeselare. Het terrein is gesitueerd in een zone voor KMO en dienstverlening. Uitstekend gelegen op amper +/- 180 meter van de bedrijvige Rijksweg met...
Huis te koop - Roeselare RBU24018
€ 361000
17, Tuinstraat, Roeselare, West-Vlaanderen
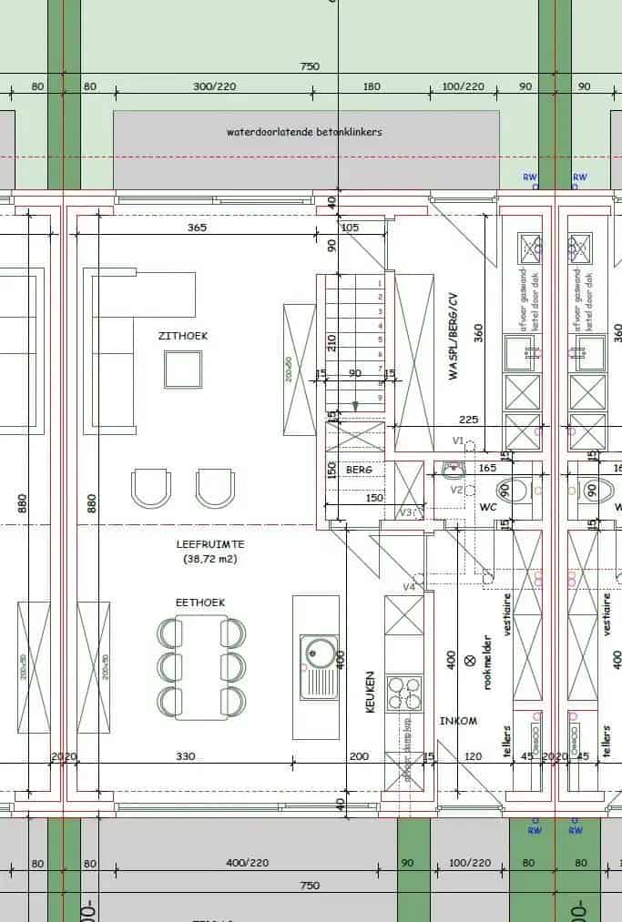
Deze VERRASSEND RUIME HALFOPEN NIEUWBOUWWONING wordt opgericht in een GEZELLIGE én CHARMANT OGENDE WOONOMGEVING! Deze STATIGE gezinswoning geniet van een OPTIMALE INDELING met zeer MOOIE WOONVOLUMES! Deze woning is ingeplant op een perceel van LIEFST...
Villa te koop - Roeselare RBU14209
€ 350000
61, Izegemsestraat, Roeselare, West-Vlaanderen
Deze goed onderhouden woonst bestaande uit: inkomhal, woonkamer - salon, keuken met ontbijthoek en toegang naar de kelder. Wasplaats, berging en garage.Op de verdieping: hal, badkamer en 3 slaapkamers.Zolderruimte.Tuin met terras. Oprit met voortuin.Troeven?+ Centrale...
Opslagruimte te koop nabij het Sterrebos – Rumbeke (Roeselare) 127 m² totale oppervlakte – ideaal voor opslag, stalling of voorraadbeheer Uitermate geschikt voor: ·Opslag van materialen of producten (zowel voor eigen gebruik als voor bedrijfsvoorraad)...
Villa te koop
21, Hoendererf, Roeselare, West-Vlaanderen
3 kamers
138 m2
Volledige aanbod
Huis te koop - Roeselare RBU20709
€ 299000
Roeselare, West-Vlaanderen
Deze woning werd volledig gerenoveerd en bestaande uit: inkomhal met bureelruimte/slaapkamer of salon, eetkamer met aanpalende keuken ontbijthoek. Berging, wasplaats en terras. Kelder.Op het tussenverdiep hebben we een eerste badkamer met toilet en inloopdouche.Op de...
Woning te koop | met optie / reservatie - Ryffelaerestraat 21, 8800 Rumbeke
€ 309000
21, Ryffelaerestraat, Roeselare, West-Vlaanderen
3 kamers
132 m²
Welkom in de Ryffelaerestraat 21 te Rumbeke (Roeselare) – een recente, energiezuinige gezinswoning in een rustige en kindvriendelijke woonwijk. Dankzij de centrale ligging geniet u van een vlotte verbinding met de E403 en het bruisende...
<p><strong><span style="font-size:14px"><span style="font-family:verdana,geneva,sans-serif">Kantoorruimte 266 of 532m2 met grote visibiliteit!</span></span></strong></p>
151B, Kwadestraat, Roeselare, West-Vlaanderen
Volledige aanbod
Nieuwbouwwoning op mooi perceel grond!
1, James Ensorstraat, Roeselare, West-Vlaanderen
3 kamers
Volledige aanbod
Handelsfonds te koop - Roeselare RBS01785
Roeselare, West-Vlaanderen
2 handelszaken + appartement op topligging in Roeselare Handelspand 1: Goed draaiende interieurwinkel Gelijkvloers (478 m²): Dit pand bestaat uit een ruime, moderne toonzaal van...
Ondergrondse garagebox in nieuwbouwresidentie
Roeselare, West-Vlaanderen
14.42 m2
Volledige aanbod
Bouwgrond in het centrum van Rumbeke!
53, Koestraat, Roeselare, West-Vlaanderen
Volledige aanbod
Instapklare nieuwbouwwoning in Rumbeke.
1, James Ensorstraat, Roeselare, West-Vlaanderen
3 kamers
Volledige aanbod
Huis te koop - Roeselare RBU24487
€ 289000
16, Joe Englishstraat, Roeselare, West-Vlaanderen
Instapklare halfopen bebouwing in een mooie omgeving bestaande uit een inkomhal met gastentoilet, gezellige leefruimte met eet-en zithoek, volledig uitgeruste keuken, praktische was/bergplaats, 2 volwaardige slaapkamers, ingerichte badkamer (inloopdouche en lavabomeubel), technische ruimte/berging, bergzolder en...