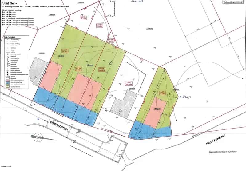
RUIME BOUWGROND VOOR EEN HOB VAN 8A14CA OP CENTRALE LIGGING IN GENK
7, Eikelaarstraat, Genk, Limburg
Volledige aanbod
RUIME BOUWGROND VOOR EEN HOB VAN 8A18CA OP CENTRALE LIGGING IN GENK
9, Eikelaarstraat, Genk, Limburg
Volledige aanbod
Grond te koop
€ 175000
Genk, Limburg
818 m²
RUIME BOUWGROND VOOR EEN HOB VAN 8A18CA OP CENTRALE LIGGING IN GENKRuime bouwgrond voor een HOB woning van 8 are 18 ca op centrale ligging in Genk. Belangrijkste troeven:- Lot 2A & lot 2B- 8 are...
RUIME BOUWGROND VOOR EEN HOB VAN 6A68CA OP CENTRALE LIGGING IN GENK
Genk, Limburg
Volledige aanbod
3 RUIME HOB BOUWGRONDEN OP CENTRALE LIGGING IN GENK 6% OP NIEUWBOUW MOGELIJK
Genk, Limburg
Volledige aanbod
Mooi gelegen perceel (HOB) - 6a79ca
Genk, Limburg
Volledige aanbod
Mooie bouwgrond voor open bebouwing (8a18ca)!
Genk, Limburg
Volledige aanbod
Grond te koop
€ 165000
Genk, Limburg
668 m²
RUIME BOUWGROND VOOR EEN HOB VAN 6A68CA OP CENTRALE LIGGING IN GENKRuime bouwgrond voor een HOB woning van 6 are 68 ca op centrale ligging in Genk. Belangrijkste troeven:- Lot 3A & lot 3B- 6 are...
Grond te koop
€ 450000
Genk, Limburg
2.300 m²
3 RUIME HOB BOUWGRONDEN OP CENTRALE LIGGING IN GENK 6% OP NIEUWBOUW MOGELIJK3 ruime HOB bouwgronden op centrale ligging in Genk. 6% btw op nieuwbouw mogelijk! Belangrijkste troeven:- Centrale ligging- Reeds verkaveld- 13m straatbreedte per...
Grond te koop
€ 175000
Genk, Limburg
814 m²
RUIME BOUWGROND VOOR EEN HOB VAN 8A14CA OP CENTRALE LIGGING IN GENKRuime bouwgrond voor een HOB woning van 8 are 14 ca op centrale ligging in Genk. Belangrijkste troeven:- Lot 1A & lot 1B- 8 are...