Bouwgrond voor open bebouwing op toplocatie!Te koop: Bouwgrond in Eernegem – landelijke ligging om jouw droomwoning te realiserenIn het hart van het rustige en landelijke Eernegem bevindt zich dit prachtig stuk bouwgrond, ideaal voor het...
Potentiële bouwgrond
€ 189000
Oostende, West-Vlaanderen
162 m2
Handelspand met bovenwoonst gelegen in druk bevolkte woonzone. Ideaal geschikt als renovatie- of nieuwbouwproject. Brede voorgevel van 6m50 en een koer aan de achterzijde (zonnekant). Gas, water en elektriciteit aanwezig in het pand. Actuele indeling:...
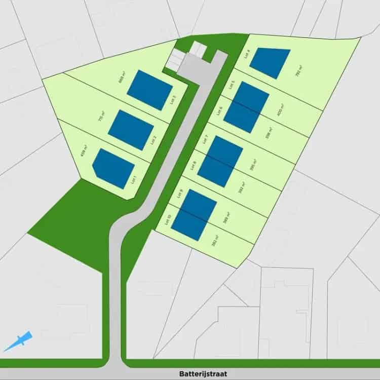
GROND + VERGUNNING voor HOEKWONING/ZORGWONING te Oostende (Mariakerke)!
54, Lijsterbeslaan, Oostende, West-Vlaanderen
Volledige aanbod
Bouwgrond te koop - De Haan RBU24051
€ 450000
6, Driftweg, Klemskerke, West-Vlaanderen
Dit uitzonderlijk perceel bouwgrond is gelegen aan de Driftweg 6 in Zuienkerke, langs de duinbossen tussen De Haan en Wenduine. Het perceel heeft een breedte van maar liefst 25 meter (indicatief conform GEOPUNT) en een...
Grond te koop
€ 385000
Gistel, West-Vlaanderen
5 kamers
1.358 m²
Uniek vastgoedproject: halfopen bebouwing op toplocatie in Gistel met 1.400 m² perceel, grote tuin en tal van mogelijkheden om wonen en werken te combinerenDeze halfopen bebouwing ligt op een toplocatie te Gistel op een perceel...
Bouwgrond voor villa in centrum Eernegem
7, Akkerbeekstraat, Ichtegem, West-Vlaanderen
Volledige aanbod
Bouwgrond te koop - Eernegem RBT82671
€ 165000
145, Oostendesteenweg, Ichtegem, West-Vlaanderen
Dit RUIM PERCEEL BOUWGROND van liefst 1.039m² is gelegen langs de verbindingsweg Oostende - Torhout. U heeft van hieruit een VLOTTE BEREIKBAARHEID, tevens geniet u van SUBLIEME VERZICHTEN op de ACHTERLIGGENDE LANDERIJEN! Er kan een halfopen...
Bouwgrond te koop - Bekegem RBT65280
€ 155000
17, Doornhoekstraat, Ichtegem, West-Vlaanderen
In het pittoreske landelijke dorpje Bekegem (tussen Jabbeke en Oudenburg), temidden van veel groen, vinden we dit mooi perceel bouwgrond op 642 m² voor het bouwen van een halfopen volume (tegenaan de grens waar nu...
Perceel bouwgrond voor een open bebouwing in De Haan.
Klemskerke, West-Vlaanderen
Volledige aanbod
Grond te koop - Langestraat 152, 8434 Middelkerke
€ 198588
152, Langestraat, Middelkerke, West-Vlaanderen
804 m²
Op zoek naar de ideale locatie voor uw droomwoning? Ontdek deze schitterende bouwgrond in de nieuwe verkaveling aan de Langestraat te Westende (Middelkerke). Gelegen op een uitstekende locatie, op een boogscheut van het centrum van...
Bouwgrond te koop - Gistel RBU05545
€ 279000
Gistel, West-Vlaanderen
Dit perceel van 1045 m² geschikt voor villabouw is rustig doch gunstig gelegen door de vlotte bereikbaarheid van autosnelweg, winkels en horeca. Het is inwaarts gelegen en beschikt over een private oprijlaan. Door de zuidgeoriënteerde...
Uniek stuk bouwgrond (804 m² - ZW) op topligging te Westende (Middelkerke)
152, Langestraat, Middelkerke, West-Vlaanderen
Volledige aanbod
Grond te koop
Middelkerke, West-Vlaanderen
Volledige aanbod
Bouwgrond te koop - Ichtegem RBT38116
€ 289000
184A, Diksmuidebaan, Ichtegem, West-Vlaanderen
Deze woning is gelegen op een royaal perceel van 1126 m², met een straatbreedte van 14 meter. Het perceel is volledig bouwgrond, wat verschillende ontwikkelingsmogelijkheden biedt. Renovatie of nieuwbouw? Deze eigendom leent zich perfect voor...
Bouwgrond net buiten het centrum van De Haan.
111, Nieuwe Steenweg, Klemskerke, West-Vlaanderen
Volledige aanbod
Bouwgrond te Mariakerke
€ 182500
Oostende, West-Vlaanderen
365 m2
Rustig gelegen bouwgrond te Oostende/Mariakerke - kindvriendelijke villa-omgeving - 365m² grondoppervlakte - 10,50 meter perceelbreedte - geschikt voor half open bebouwing. - bouwlagen maximum 2 + dak - bouwdiepte maximum 16 meter op het gelijkvloers...
Bouwgrond voor open bebouwing
48, Dorpsstraat, Oudenburg, West-Vlaanderen
Volledige aanbod
Gunstig gelegen bouwgrond aan de Conterdam
15, Brouwerijstraat, Oostende, West-Vlaanderen
Volledige aanbod
Bouwgrond voor open bebouwing in landelijke omgeving te Roksem (684 m²)
Oudenburg, West-Vlaanderen
Volledige aanbod
BOUWGROND
Oostende, West-Vlaanderen
Volledige aanbod
Bouwgrond met vergunning
71, Sint-Paulusstraat, Oostende, West-Vlaanderen
Volledige aanbod
Grond te koop - Lombardsijdelaan 5, 8430 Middelkerke
Langs de Lombardsijdelaan tussen Middelkerke en Nieuwpoort is dit mooi perceel bouwgrond van 990 m² gelegen. Door zijn centrale ligging zijn alle nodige winkels, horeca, scholen en kinderopvang op slechts enkele minuten gelegen en beschikt...
Grond te koop - Brugsesteenweg 265, 8460 Oudenburg
€ 190000
Oudenburg, West-Vlaanderen
214 m²
Perceel bouwgrond voor open bebouwing op 1.214 m². Dit perceel biedt mogelijkheden tot het bouwen van een alleenstaande woning met op het gelijkvloers een oppervlakte van 208 m² en op de verdieping 121 m²....
Perceel bouwgrond voor open bebouwing op 1.214 m²
Oudenburg, West-Vlaanderen
Volledige aanbod
Bouwgrond
61, Kroonlaan, Oostende, West-Vlaanderen
Volledige aanbod
Grond te koop - Lombardsijdelaan 5, 8434 Middelkerke
Langs de Lombardsijdelaan tussen Middelkerke en Nieuwpoort is dit perceel bouwgrond gelegen en wordt, onder voorbehoud van opsplitsing, aangeboden in mooie 2 loten! Door zijn centrale ligging zijn alle nodige winkels, horeca, scholen en...
Grond te koop
€ 112200
Middelkerke, West-Vlaanderen
561 m²
Rustig gelegen perceel bouwgrond met oppervlakte van 561 m².Nabij het centrum van Houthulst, gelegen in een rustige verkaveling, bieden we u dit waardevolle perceel bouwgrond aan. Dit lot bouwgrond beschikt over een grondoppervlakte van 561 m² en bevindt zich in...
projectgrond van 300 m² geschikt voor appartementsbouw!
Bredene, West-Vlaanderen
Volledige aanbod
Bouwgrond te koop - Oostende RBU20104
€ 185000
47, Oud Vliegveld, Oostende, West-Vlaanderen
Bent u op zoek naar een rustig gelegen bouwgrond voor een halfopen bebouwing in Oostende? Dan is dit perceel van 421 m² in de charmante woonwijk van Stene ideaal voor u! ...
Projectgrond van 400 m² gelegen in centrum Oudenburg
In het rustige Roksem, deelgemeente van Oudenburg, ligt dit mooie perceel bouwgrond van 684 m². Het is bestemd voor een open ééngezinswoning en je bent volledig vrij om te bouwen wanneer het jou uitkomt, zonder...
Bouwgrond te koop - Ettelgem RBU15204
€ 239000
48, Dorpsstraat, Oudenburg, West-Vlaanderen
Mooi perceel bouwgrond gelegen in het centrum van Ettelgem, tussen Jabbeke en Oudenburg. Het perceel van 911m² is Zuidgericht. Er is geen bouwverplichting. (wg, vvg, vg, gmo, gvkr) www.desmetpoupeyebrugge.be Voor meer info of een bezoek,...
Bouwgrond te koop - Bredene RBT44112
€ 299000
60, Noord-Edestraat, Bredene, West-Vlaanderen
Perceel bouwgrond, ideaal voor een woning of appartementsgebouw. Voorzien van 8 achterliggende, reeds bestaande garages. Achterzijde van het perceel met uitweg naar de Noord Ede. Geschikt als extra troef of investeringsopportuniteit.
...
Bouwgrond zonder bouwverplichting te koop in Gistel
144, Brugse baan, Gistel, West-Vlaanderen
Volledige aanbod
Bouwgrond te koop - De Haan RBU24054
€ 690000
Vlissegem, West-Vlaanderen
Droomt u van een stijlvolle woning aan zee? Dit uitzonderlijke perceel bouwgrond, gelegen in de rustige Prins Karellaan in de Concessie, biedt u de unieke kans om die droom waar te maken. Op slechts 400...
Grond te koop - Lombardsijdelaan 5, 8434 Middelkerke
Langs de Lombardsijdelaan tussen Middelkerke en Nieuwpoort is dit perceel bouwgrond gelegen en wordt, onder voorbehoud van opsplitsing, aangeboden in mooie 2 loten! Door zijn centrale ligging zijn alle nodige winkels, horeca, scholen en...