Perceel bouwgrond, 591 m², kavel 1+4, gelegen net buiten de dorpskern van Asper (Gavere) in een rustige buurt, bestemd voor het bouwen van een gesloten bebouwing.
P- en G-score: A, WORG: neen.
Naast de vraagprijs eveneens...
Bouwgrond voor Half Open Bebouwing
Asper, Oost-Vlaanderen
Volledige aanbod
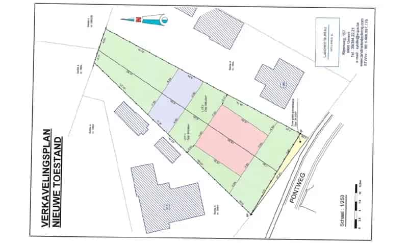
Perceel bouwgrond - Kavel 2
Asper, Oost-Vlaanderen
Perceel bouwgrond (kavel 2, 542 m²), rustig gelegen net buiten de dorpskern van Asper (Gavere). Bestemd voor het bouwen van een gesloten bebouwing.
P- en G-score: A, WORG: neen.
Naast de vraagprijs eveneens deelname in de...
Bouwgrond te koop in Gavere
€ 170000
Asper, Oost-Vlaanderen
Verkaveling op uitzonderlijke locatie.
Grondoppervlakte van 548,86 m².
Uitstekend aanbod. Goede ligging, rustig én toch nabij allerhande voorzieningen
Om...
De zoekmachine van Floople heeft je zoekopdracht verbreed en dacht dat deze woningen misschien interessant voor je zijn.
Project: Residentie Van Simaey - Gavere 24694-8012040
Zelden heeft een transformatie van een voormalige industriële locatie naar een woon-werkproject zo'n unieke uitstraling als die van Residentie Van Simaey in Gavere. Het motto 'Goed Zuiver Onvervalscht' dat al sinds 1929 op de poster...
TE KOOP in GAVERE - Asper aan de schelde,
Asper, Oost-Vlaanderen
Volledige aanbod
Huis te koop
€ 1790000
Asper, Oost-Vlaanderen
6 kamers
7.406 m²
Riante eigendom met ontwikkelingsmogelijkhedenHet voormalige Armhuis van Asper, werd in 1863 opgericht door Sabina De Groote naar ontwerp van architect E. de Perre-Montigny en is een uniek stuk erfgoed met een rijke geschiedenis.Bijzondere eigendom op...
Ruime nieuwbouw woning op een prachtige locatie!
6, Tempelstraat, Asper, Oost-Vlaanderen
4 kamers
238 m2
Volledige aanbod
Ruime nieuwbouw woning op een prachtige locatie!
6, Tempelstraat, Asper, Oost-Vlaanderen
4 kamers
238 m2
Volledige aanbod
Exclusieve villa op perceel van 2526 m²
5, Stationsstraat, Asper, Oost-Vlaanderen
4 kamers
344 m2
Volledige aanbod
Volledig vernieuwde Half Open.
Asper, Oost-Vlaanderen
4 kamers
193 m2
Volledige aanbod
Tijdloos wonen.
81, Luxemburgstraat, Asper, Oost-Vlaanderen
3 kamers
152 m2
Volledige aanbod
Rustig gelegen halfopen woning met potentieel te koop!
Asper, Oost-Vlaanderen
3 kamers
174 m2
Volledige aanbod
Prachtige BEN-nieuwbouwwoning met 4 slaapkamers!
Asper, Oost-Vlaanderen
4 kamers
186 m2
Volledige aanbod
Prachtige BEN-nieuwbouwwoning met 4 slaapkamers!
Asper, Oost-Vlaanderen
4 kamers
164 m2
Volledige aanbod
Prachtige BEN-nieuwbouwwoning met 4 slaapkamers!
Asper, Oost-Vlaanderen
4 kamers
193 m2
Volledige aanbod
Prachtige BEN-nieuwbouwwoning met 4 slaapkamers!
Asper, Oost-Vlaanderen
4 kamers
164 m2
Volledige aanbod
Prachtige BEN-nieuwbouwwoning met 4 slaapkamers!
Asper, Oost-Vlaanderen
4 kamers
193 m2
Volledige aanbod
Prachtige BEN-nieuwbouwwoning met 4 slaapkamers!
Asper, Oost-Vlaanderen
4 kamers
167 m2
Volledige aanbod
Prachtige BEND-nieuwbouwwoning met 4 slaapkamers!
Asper, Oost-Vlaanderen
4 kamers
164 m2
Volledige aanbod
Prachtige BEN-nieuwbouwwoning met 4 slaapkamers!
Asper, Oost-Vlaanderen
4 kamers
167 m2
Volledige aanbod
Prachtige BEN-nieuwbouwwoning met 4 slaapkamers!
Asper, Oost-Vlaanderen
4 kamers
167 m2
Volledige aanbod
Prachtige BEN-nieuwbouwwoning met 4 slaapkamers!
Asper, Oost-Vlaanderen
4 kamers
193 m2
Volledige aanbod
Prachtige BEN-nieuwbouwwoning met 4 slaapkamers te koop!
Asper, Oost-Vlaanderen
4 kamers
188 m2
Volledige aanbod
Wonen en werken langsheen de Stationsstraat (Asper)
80, Stationsstraat, Asper, Oost-Vlaanderen
3 kamers
395 m2
Volledige aanbod
Uitzonderlijk commercieel pand !
80, Stationsstraat, Asper, Oost-Vlaanderen
395 m2
Volledige aanbod
TE KOOP in Asper aan de P. Ceuterickstraat 29
Asper, Oost-Vlaanderen
4 kamers
149 m2
Volledige aanbod
Bijzonder ruime (295m²) gezinswoning in Asper
Asper, Oost-Vlaanderen
4 kamers
295 m2
Volledige aanbod
Knappe woning in het pittoreske centrum
Asper, Oost-Vlaanderen
3 kamers
154 m2
Volledige aanbod
Knappe woning in het pittoreske centrum
Asper, Oost-Vlaanderen
3 kamers
154 m2
Volledige aanbod
Riante eigendom met ontwikkelingsmogelijkheden
1, Steenweg, Asper, Oost-Vlaanderen
5 kamers
1280 m2
Volledige aanbod
Huis te koop in Gavere
€ 618407
Asper, Oost-Vlaanderen
7 kamers
223 m2
Deze nieuwbouw woning (lot 2) wordt gebouwd door Plan en Bouw en is gelegen op een verbindingsweg tussen Gavere en Asper.
Wat je dagelijks nodig hebt, vind je...
Huis te koop in Asper
€ 94000
Asper, Oost-Vlaanderen
TE KOOP in GAVERE - Asper aan de schelde,
- Aard van het goed: Landbouwgrond:
GAVERE - Asper, genaamd “De Landoye ” bekend ten kadaster Sectie B, nummer...
Huis te koop in Asper
€ 495000
Asper, Oost-Vlaanderen
6 kamers
193 m2
Deze ruime, lichtrijke woning werd volledig en hoogwaardig gerenoveerd.
Het gelijkvloers beschikt over een ruime leefruimte, aansluitend op de eigentijdse...
Huis te koop in Asper
€ 320000
Asper, Oost-Vlaanderen
5 kamers
152 m2
Deze gelijkvloerse woning is uitstekend gelegen (landelijk én toch nabij de N60) en structureel degelijk. Mits enige renovatiewerken maakt u hier een...
Huis te koop in Gavere
€ 392500
Asper, Oost-Vlaanderen
7 kamers
186 m2
Ruime nieuwbouwwoning met 4 slaapkamers en carport te koop!
Indeling: inkomhal met gastentoilet, ruime lichtrijke leefruimte met open keuken. Op de eerste...
Huis te koop in Gavere
€ 412500
Asper, Oost-Vlaanderen
7 kamers
188 m2
Ruime nieuwbouwwoning met 4 slaapkamers en carport te koop!
Indeling: inkomhal met gastentoilet, ruime lichtrijke leefruimte met open keuken. Op de eerste...
Huis te koop in Gavere
€ 385000
Asper, Oost-Vlaanderen
7 kamers
164 m2
Ruime nieuwbouwwoning met 4 slaapkamers en carport te koop!
Indeling: inkomhal met gastentoilet, ruime lichtrijke leefruimte met open keuken. Op de eerste...
Huis te koop in Gavere
€ 405000
Asper, Oost-Vlaanderen
7 kamers
164 m2
Ruime nieuwbouwwoning met 4 slaapkamers en carport te koop!
Indeling: inkomhal met gastentoilet, ruime lichtrijke leefruimte met open keuken. Op de eerste...
Huis te koop in Gavere
€ 382500
Asper, Oost-Vlaanderen
7 kamers
164 m2
Ruime nieuwbouwwoning met 4 slaapkamers en carport te koop!
Indeling: inkomhal met gastentoilet, ruime lichtrijke leefruimte met open keuken. Op de eerste...